НР5-58.29.3-5л-1

Чертеж изделия:
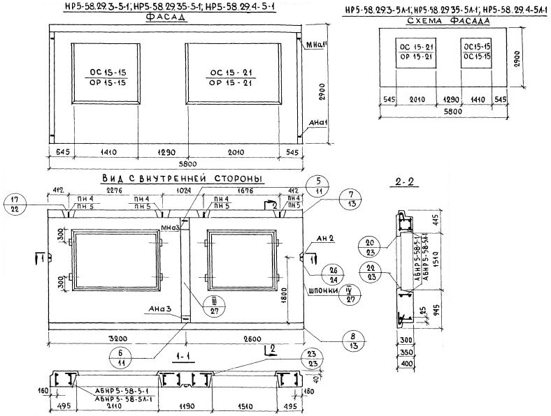
Чертеж НР5-58.29.3-5л-1
Характеристики изделия:
ПараметрЗначение
Длина5800 мм
Ширина300 мм
Высота2900 мм
Масса4830 кг
Нормативный документСерия 1.132-1

НР5-58.29.3-5л-1   Наружная стеновая панель рядовая по Серии 1.132-1.